550 Bedok North Avenue 1 - 2 Units for Sale
Map View
We’ve shown you all the matches
Almost there!
Refining your recommendations.
This may take a few seconds...
550 Bedok North Avenue 1
550 Bedok North Avenue 1 460550(D16) Bedok / Upper East Coast
Summary
550 Bedok North Avenue 1
Read more
Project details
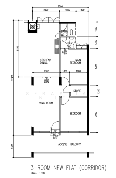
TypeHDB
PriceS$ 465K - 490K
Completion year1979
Tenure99-year Leasehold
No. of blocks1
No. of floors12
DeveloperHousing & Development Board (HDB)
Explore PropertyGuru
Properties by ownership










